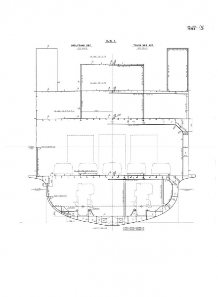
中古艇情報 その他メーカー(国内) フェリー NO,230525 カーフェリー(999t)550名(大型=15台・乗用車=6台)400t 2001yy
タイプ:-
全長:8500.0ft
全幅:1440.0m
全深:408.0m
登録:2001/H13
船検:-
エンジン:-
アワーメーター:-
推進力形式:船内機
出力:3000.0HP × 2基
巡航速度:-
最高速度:21ノット
燃料種別:その他
燃料タンク:-
清水タンク:-
免許:特殊
保管方法:係留
定員:550名
船底塗装:-
航行区域:沿海区域
ショップ名
五島マリーン
住所
長崎県五島市三尾野2-5-23
電話番号
0959-74-2173
FAX番号
0959-74-2733
営業時間
09:00〜18:00
定休日
日曜
ホームページ














































航海設備一式。着岸設備一式。発電設備一式。車両積載設備一式。客室設備一式。
宿泊設備一式。
*車両積載:大型=16台・乗用車=6台{乗用車のみ61台}総積載400t
*発電機:{550k+480k}x2台。
速度=21ノット。バウスラスター。
エンジン(ダイハツ{8DKM-28}3000x2基。